Qu'est-ce que le conduit d'air?
Qu'est-ce que la carrosserie de ventilation?
Pouvez-vous utiliser Flex Duct pour HVAC?
2024-04-18
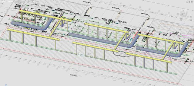
La technologie BIM(Building Information Modeling) a joué un rôle plus important dans l'industrie de la construction de nos jours. Avec l'ampleur et la complexité croissantes des projets de construction, la configuration traditionnelle du conduit GI fait face à de nouveaux défis en matière de conception, de fabrication et d'installation. Pour résoudre ces problèmes, la technologie modulaire BIM et le logiciel iDuct ont été adaptés auTissu Fibre Conductwork, Réalisant la modularisation complète du processus pour les systèmes de conduits d'air non standard traditionnels de la conception, de la fabrication et de l'installation à la maintenance après-vente. Il aide à améliorer le taux d'assemblage du bâtiment et à accélérer le processus de modularisation électromécanique.

Conception modulaire: La technologie BIM est adoptée avec le concept de conception modulaire, séparant leNanosoxSystème de conduite d'air isolé en composants, pièces et modules d'accessoires indépendants, permettant la conception, la construction et la maintenance plus flexibles et efficaces. La modularisation augmente considérablement la réutilisabilité et la standardisation, réduisant les coûts de construction entre-temps.
Intégration de données: la technologie modulaire BIM permet l'intégration et le partage de données à processus complet pour plusieursInsusoxSystèmes de conduits d'air pré-isolés, rendant la livraison d'informations plus efficace dans les plans, la conception, la fabrication, l'assemblage et le fonctionnement. Grâce à la création d'une base de données, les participants peuvent partager et mettre à jour les données en temps réel, ce qui réduit l'écart et la latence de la livraison des informations et améliore l'efficacité du projet.
Développement durable: la technologie modulaire BIM se concentre sur le développement durable, réduisant considérablement la consommation d'énergie et la pollution de l'environnement grâce à l'optimisation de la conception et de la construction. La conception modulaire optimise l'utilisation des matériaux et de l'énergie, réduisant les émissions de carbone du système de conduits d'air. Le concept de développement durable correspond aux exigences de la construction verte et de la réduction des émissions.
Améliorer l'efficacité de la gestion: la technologie BIM remplit la gestion complète du processus à différentes étapes, réalisant la connexion transparente de l'information et la collaboration de travail deConception de conduit d'air, Fabrication flexible et assemblage sur place jusqu'à la maintenance. Cela augmente considérablement l'efficacité de la gestion de projet et réduit la perte de temps et de coûts.
Accélérer le processus de construction: Différents modules de construction peuvent être conçus et fabriqués à l'avance grâce à la technologie BIM, puis assemblés sur place, raccourcissant la période de construction et améliorant l'efficacité. Pendant ce temps, la conception modulaire diminue la charge de travail et la taille de l'équipage, réduisant les risques de construction et les risques potentiels pour la sécurité.
Améliorer la qualité du système: la technologie BIM remplit la normalisation et le contrôle de la qualité du système de conduits d'air. La préfabrication fait progresser l'intégrité du conduit d'air, minimisant les écarts et les problèmes, et améliorant la qualité et la fiabilité du système de conduits d'air flexibles.
Optimisez l'utilisation de l'espace: la technologie BIM habilite l'aménagement précis du chantier. LeSystème de conduits d'airPourrait être assemblé de manière flexible en fonction de la situation réelle, en utilisant au mieux l'espace. C'est particulièrement important pour le chantier de construction où la hauteur est limitée, l'utilisation et la valeur de l'espace sont fortement améliorées.

Technologie modulaire BIM de DurkeeSystème de ventilation textileCaractéristiquesConception modulaire, intégration de données et développement durable, apportant de nouvelles solutions à l'industrie de la construction. La technologie peut non seulement améliorer l'efficacité de la gestion, optimiser l'utilisation de l'espace et accélérer le processus de construction, mais également faire progresser considérablement la qualité du bâtiment. Dans un proche avenir, la technologie modulaire BIM jouera sans aucun doute un rôle plus important dans l'industrie de la construction, stimulant le développement de la construction intelligente et offrant un environnement confortable pour l'avenir.